项目信息
PROJECT INFORMATION
Address | 万科·玖西堂
Layout | 5室2厅3卫
Designer | 何玉祥
Manager | 盛 军
Style | 原木风
Area | 240㎡
Type | 清水房改造
Price | 80w
IDEATION
AESTHETIC
FUNCTION
本案为清水改造,设计师从从屋主实际生活需求出发,梳理空间秩序,重构功能分区。一楼主要为开放互动的公共区域,增强家人间的交流;二楼优化结构,“大套间”设计,让私密空间更贴合多元生活场景。
改造前
改造后
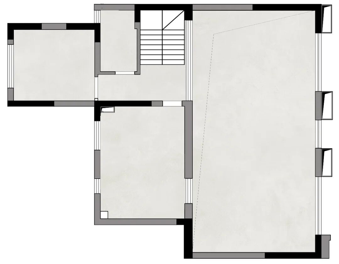
1F
2F
➊ 一楼厨房外拓展独立岛台区域,延伸操作台面的同时形成开放式互动空间,兼顾备餐、简餐与社交功能;
➋ 阳台区划分为观景休闲区与家政生活区,通过玻璃移门与客餐厅柔性分隔,实现采光共享与空间联动;
➌ 楼梯下卫生间扩容改造,定制收纳系统提升储物容量;
➍ 二楼休憩区整体重构,主卧升级为家庭式多功能套房,配套独立起居空间形成完整生活模块;
➎ 次卧空间整合后打造"办公+衣帽间"复合功能区,使用更便捷舒适。
-
ISLAND ZONE
岛 台 区
归家的仪式感,从踏入玄关的一刻开始。木质与留白的冷暖平衡,让情绪自然切换,转角的一处微景,勾勒出归家的松弛感。
厨房外拓独立岛台区形成开放式互动格局,同时与窗外景致联动,演绎出空间独有的韵味。延伸的操作台面,满足备餐、简餐、品茶、小酌等多元场景,生活答案,尽在此处。
-
LIVING ROOM
客 厅
客厅拥有多功能、多元化的组合,承载着动态的生活剧本。电视背景墙米白色与浅木色搭配,柔和质朴,成为空间的温暖锚点。
灵活的家具组合,带来更随性的使用方式,适配独处、聚会、家人互动等不同模式。阳光透光纱帘,光影随时间游走,空间因此有了流动的生命力。
-
DINING ROOM
餐 厅
餐桌与餐边柜留出空间与客厅串联,形成流畅的洄游动线。多功能餐边柜,兼顾了展示与收纳。胡桃木三头吊灯洒下温暖光晕,袅袅烟火气,细碎好时节。
-
UTILITY BALCONY
生活阳台
阳台划分为休闲区与独立家政区,分别与客厅、餐厅联动。明媚阳光与窗外美景让日常家务也变得轻松愉悦。
-
STUDY
书 房
拾阶而上,二楼以弧形顶面过渡,柔化空间氛围。公区改造为开放式书房,整面书柜采用“木色开放格+米白封闭柜”组合,兼顾展示与储物。一盏飞碟吊灯、一张胡桃木书桌,简单却足够专注。
-
BEDROOMS
卧 室
休憩区是富有安全感的私密地带。次卧空间功能整合,拆除隔墙后,书桌与衣柜穿插设计,转角开放格成为趣味角落。
主卧内外双卧室布局,兼顾隐私与互动。柔和的灯光、自然的材质,以更加幽静缓慢的节奏,提供功能齐全而氛围松弛的休憩空间。
-
TOILET
卫生间
卫生间干湿分离,通过合理布局,空间利用最大化。镜柜延展视觉,在简约中透露着精致的生活品质。
全案设计 / 成都欢乐佳园团队
基装 / 27w
主材 / 35w
软装 / 10w
设备 / 8w
