在这个三代同堂的家庭,充足的收纳成为业主的首要需求。基于此,设计师结合业主偏爱的原木风,力求在实用性与美观性之间找到合适的平衡点。
选用质感细腻、色调和谐的材质,搭配恰到好处的灯光布局,将收纳系统完美融入到整个居住空间中,既满足了业主的日常需求,又赋予了空间以独特的韵味与格调。
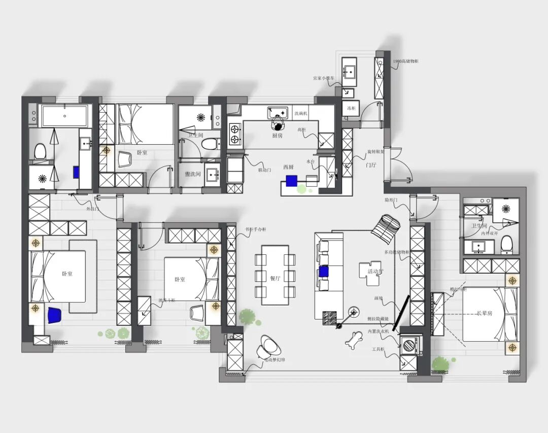
改造前户型图
改造后户型图
➊ 阳台纳入客厅,有效拓宽生活区域,营造出宽敞明亮的居住环境;
➋ 厨房改造为中西双厨布局,中厨区域设置玻璃联动门,实现与外部空间的自由流通与互动。
➌ 优化主卧空间布局,外移调整门洞位置,使其成为一个集休憩区、衣帽间及卫生间功能于一体的舒适套房。
客厅作为家的核心区域,用简介的设计语言,构建一种简约而丰富的生活。看似简约的空间之中,不乏收纳力十足的整墙柜、组合架,完整的矩阵排列结构,带来精致有序的空间基调。
窗户被白色梦幻帘所装饰,取消阳台隔断后,转角以弧形过渡,柔和空间氛围,让更多的光线进入,创造出明亮而温馨的环境。
客餐厅全开放,多功能、多元化的组合营造出自由化的空间,可以给予一家人更为丰富的居家体验,聚餐、观影、轻办公、聊天,串联起不同的生活场景。
沙发与餐桌形成高效流畅的洄游动线,空间更具流动性。继而优化空间的结构与采光,餐厅吊灯呼应弧形元素,温馨有爱的居家松弛感悄然延展。
厨房分为中厨与西厨,西厨区打开,通过立柱延伸搭建了一个小吧台,形成视觉上的隔断划分,同时也方便简餐使用。灯具、柜体以及吧台无不展现出多体块与直线条的鲜明特征,透露着对品质生活的追求与热爱。
中厨区则为半开放式,玻璃联动门开合自由,提升交互性。U形布局扩展空间的尺度,烹饪动线一气呵成,统一的色调带来舒适的视觉体验。
主室以素雅、简洁的姿态,创造独特的舒适氛围。床头一侧背景墙以咖色矩形形成一端小景,与床头灯相映成趣,多了一丝放松温暖。飘窗位置设计了一组开放格收纳,并延伸打造梳妆台面,完善功能需求。
儿童房,以奶油白、原木色和浅蓝色搭配,为房间增添一些活力和变化,并合理利用布局,构建出阅读和玩乐功能兼具的空间。
主卫由衣帽间动线引入,根据业主习惯,进行干湿分离设计,并增加了浴缸,归家疲惫的身心得以温柔拥抱,大大提升了居家舒适度。
实景图VS原房图
