01
屋主需求
● 家庭成员
五口之家,三代同堂。这个家将血脉紧紧联系到了一起。
身处事业单位的夫妻俩,总是免不了有些许琐事,闲暇之余,希望有个人时间的同时,也能够陪伴到家人,努力维系住这个他们为之努力的地方。
● 家的遐想
展望不远的将来,回家后,父母孩子都在身边,每天清晨看着爱人的容颜苏醒,每一寸时光都有些欢喜。
为了让家人间的联系更紧密,但又不失自己的个人空间,他们认为对空间的重新排布是非常重要的。
同时,也希望房屋整体氛围也能更适合老人孩子居住,家中的每一处都是值得感受和记录。
02
设计改造
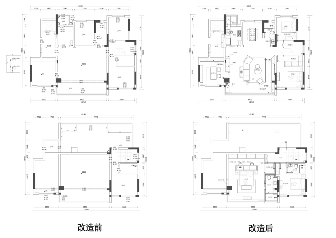
原始户型:
本案面积170m²,5室2厅3卫1阳台,原始户型为精装房,客厅为挑高空间,整体空间利用率不高,在视觉上空间感不大,生活体验度不足。
设计改造:
1.将客厅空间进行搭建,增加空间利用率及空间功能区。
2.将一楼客厅一侧卧室与客厅联通,调整为独立餐厅空间,增加空间尺度,也让增加活动区自然通风及采光。
3.客厅空间与阳台联通,将沙发后房间调整为独立多功能书房区域,并采用隐形门与客厅分割,让空间整体性更好。
4.二楼主卧室中用床头矮墙形成半隔断,将衣帽间空间融入到卧室空间中,加大视觉空间感。
03
实景落地
白色与原木色交错,点缀上绿植和棉麻元素,形成了极简风格的基调,增加了干净舒适的氛围。
质朴的空间氛围配上五口人其乐融融的生活,这大概是幸福生活应该有的样子吧。
他们在这个家中是父母,也是子女,一天的工作后,在这个客厅,享受着阖家欢乐的时刻。
设计师以空间为画布,将客厅进行重新洗牌,拓展了功能区,增加了活动区自然通风及采光。
往后时光里,这里是家人享受团聚之地,也是片隅放松的归处。
隐藏门柜一体设计,在视觉上让客厅空间更显开阔。
极简的背景墙让电视在播放过程中自成一景,衬托出干净高级的风格。
电视柜隐藏式收纳让家更利落,也让打扫过程省了几分心思。
每日学习工作后,蜗居在沙发上和家人享受闲暇,重要的不是电视节目,而是和家人相伴的时光。
原木质感的餐厅,完美展现了家居的松弛感,也承载了这世代的烟火气。
桌上郁郁葱葱的绿萝也为这个家增添了一分生机,为整个空间增添了一分别样的色彩。
一字型厨房,拉长了延伸感,也有效利用了厨房空间,增加了烹饪的操作效率。
每天清晨,在这里为家人备上开启一天的佳肴,深夜夜宵时刻,暖的也不只是胃。
楼梯将主卧和客厅隔绝开,即使劳累先行休息,父母和孩子也不会因为担心打扰休息而束手束脚。
光斑从二楼洒落,在这个快节奏的时代,总有需要享受清欢的氛围。
由阶梯向上,推门进入主卧,别有一番天地。
整个卧室无论是配色还是装饰都无一不体现着家的质朴。
上方的隐藏式式暖光灯,也为一天最后的休息增加了些许温暖。
两间侧卧,童真和素雅,交响映照。
清晨在房间醒来,窗外的阳光透过窗纱,在自己喜欢的状态里生活。
顶光映照着素雅的柜体,让主卫呈现出极具质感的氛围。
BEFORE
AFTER
