生活,自有无界的理想意趣
空间,更需精致的品质搭配
目之所及的愉悦 心之所向的享受
在这里一切都有迹可循
居家时刻,回归生活本真。相较于原始精装房千篇一律的空间氛围,本案业主希望空间能超越单纯的使用感受,成为个人心境与审美品味的深刻展现。
设计
思路
IDEATION | AESTHETIC | FUNCTION
面向生活本源,通过深入了解业主的需求,设计在黑白灰基础上融合现代材质,以呈现轻奢质感。并重构部分格局动线,塑造空间新意趣。
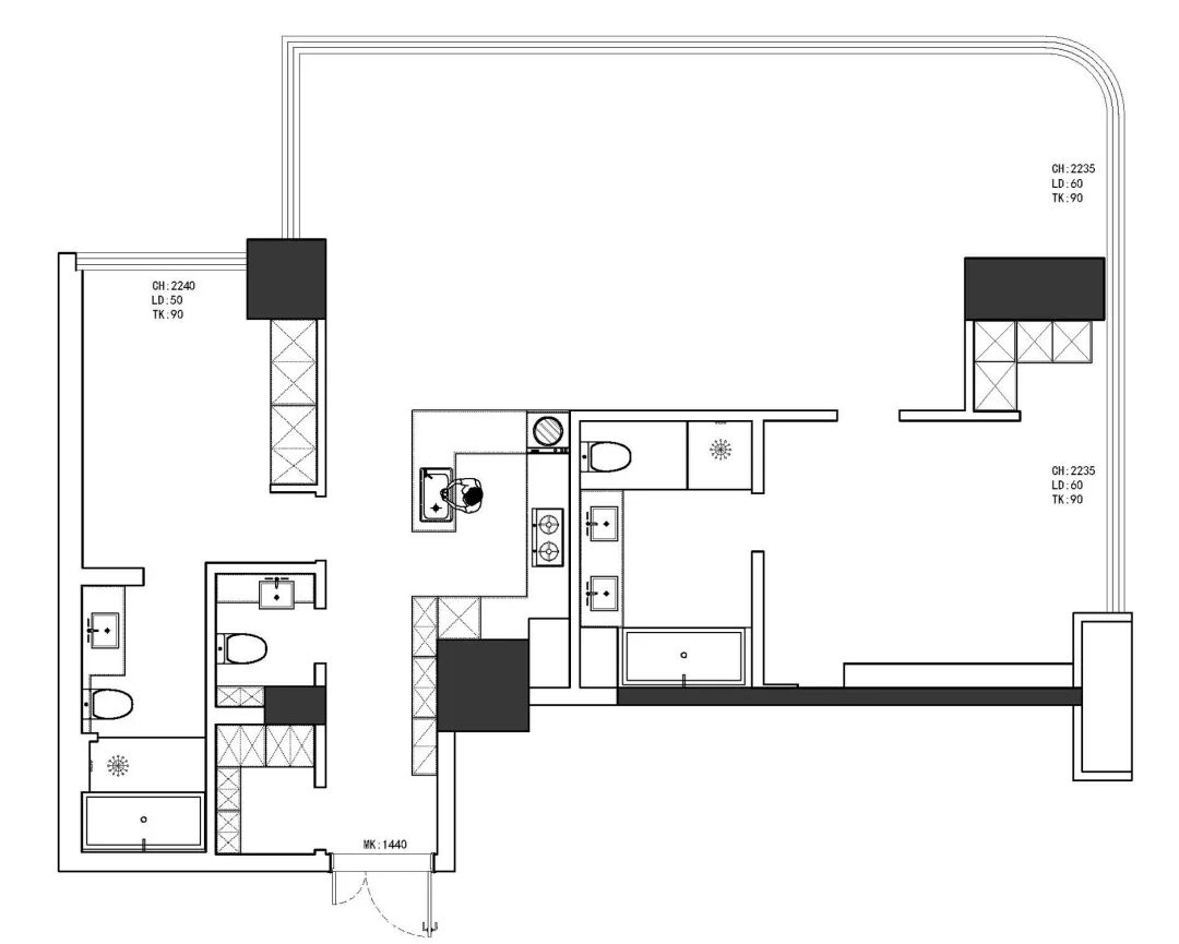
改造前户型图
改造后户型图
➊ 原户型功能布局较为齐全,仅微改以调整部分动线,进而契合屋主的生活方式。
➋ 全屋墙纸和墙板拆除,恢复空间的纯净与可塑性,进而铺设木饰面加岩板点缀,赋予空间独特的视觉焦点与层次感。
➌ 主卧将门调整至侧面,避免卧室门直对床的尴尬,床尾满墙一字衣柜,扩充收纳系统。
01
FEATURE
[PART]
(元素吸睛)
自然肌理 | 碰撞出高阶美学盛宴
»»»
推门入户,业主的高阶审美开始显现。左侧储物间门与咖色木饰面保持一致,增强空间的连贯性。
墙上装饰红色LV挂画,活跃起整个空间,同时缔造出既奢华非凡又细腻入微的美感记忆。
玄关柜自然过渡至开放式厨房,转角做全嵌入式冰箱,L型台面做吧台,增加功能性的同时,营造出宽敞明亮的互动空间。
客餐厨一体式设计,让业主可以在开放的公共区域里享受不同的生活趣味。
02
FEATURES
[PART]
(开放设计)
多元场景 | 让空间自由流转
»»»
客厅270°环幕落地窗,引景入室。全屋采用无主灯设计,顶面以双眼皮吊顶勾勒轮廓,尽可能开拓视野和空间尺度。
灰色和深咖色为空间主色调,沙发背景墙利用木饰面搭配墨绿色岩板,并内嵌氛围灯带,提升空间层次感的同时,于光影交错间构建出一方幽静。
白色真皮沙发与LV经典茶几的组合,彰显出屋主不凡的品味与格调。沙发对面优雅摆放了铝制的橡木面罩电视,可根据空间需求调整,收放自如,设计独特。
开放式餐厅与客厅融为一体,拓宽视觉边界,增加了空间的连贯性。玫瑰金酒柜搭配岩板餐桌,独特的奢华光泽不仅提升了餐区的整体质感,更在简练之中增添了丰富的层次与细节。
客厅一隅,精心布置了LV经典手提箱、暴力熊雕塑、高尔夫球杆等,构筑了实用便捷又趣味横生的多功能区域,为日常居住空间增添了一抹不可复制的个性魅力。
03
FEATURES
[PART]
(舒适体验)
松弛有度 | 包裹生活的温度
»»»
书房空间兼顾了实用性与美观性。橘色休闲椅与精致小边几的温馨搭配,营造出舒适雅致的阅读休闲氛围。
窗边则安置了一张可移动书桌,灵活适应不同的工作与学习需求,让自然光线与视野美景成为灵感创作的最佳伴侣。
延续公区的格调氛围,主卧铺陈大面积咖色格栅木饰面,辅以灰色岩板,交织出宁静而纯粹的空间基底。
卫生间通铺浅色纹理瓷砖,搭配咖色浴室柜,既展现了低调的奢华感,又不失生活的温馨气息。双台盆+镜柜设计,视觉上更加宽敞明亮,同时提升了空间利用率。
改造前后对比
客厅 Living Room
卧室 Bedroom
卫生间 Lavatory
——
REVIEW
——
AWARDS
