● 家的遐想
本案客户从事游戏行业,在这个充满创意的行业,业主也对自己的新家充满了在新奇方面的期待。因为是一人独居,所以客户希望自己的小屋静中取动,在风格沉稳的情况下兼具一些俏皮感。
● 设计理念
本案设计师结合收纳、动线等方面重新梳理他们家的设计思路,将空间进行先拆解再结合,形成了一个自由的多动性空间。
设计师以静态设计展现出动态美感,使物象在视觉中呈现动态的空间变换效果,灵动感十足。将储物与设计相结合,融入整体氛围之中。
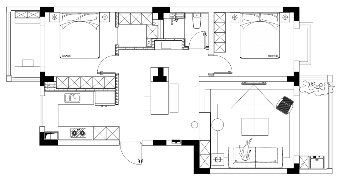
. 设计改造
• 改造前→改造后
改造亮点.
1.本案户型方正,结构比较合理
2.将餐厅承重柱二次改造,兼具装饰和收纳功能。
3.将主卧墙面外推,拓展休憩空间,让私人空间更为自在。
. 实景落地
客厅.
客厅柔软的布艺沙发搭配背后做了折页设计的背景墙,为厚重的空间配色增加了几分灵动与俏皮。
客厅的阶梯向内延申与电视柜和地台交汇,一体化的设计整合了空间布局。
沙发侧边的墙面与吧台相连,兼顾了储物与工作的需求,同时吧台侧边安装了嵌入式的饮水系统,为学习与生活增添了便利。
电视背景墙以奶白色打底,搭配弧形设计的钢板,宛若栩栩展开的纯黑画卷。同时也具有了收纳展示的功能。
胡桃木色电视柜体与黑色金属面板相辅相成,醒目地标志了整个客厅的中心。
餐厅.
承重柱面用不锈钢材质包裹,为空间增添了几分质感。与餐厅相连后,形成了一条洄游动线,有效规划出区域,日常行动路线更为清晰。
厨房.
厨房向客餐厅拓展了部分区域,形成半开放式U形布局,从备菜到烹饪,合理的空间布局做菜一气呵成。一体式油烟机节约了厨房储物空间。
卧室.
主卧空间二次改造,墙面向厨房方向推进了55公分,增加了衣物的收纳,同时保证了空间的完整性,使用了一门到顶,视觉上更为简洁
床头卷边背景板搭配型材灯,在每一个回家休息的夜晚,灯光缓缓亮起,疲惫也随着光线的弥散慢慢消失,每一天都氛围感满满。
卫生间.
卫生间采用了二分化的设计,将淋浴区和盥洗区分离,让日常生活更为便利。
